About Emaar Palm Heights
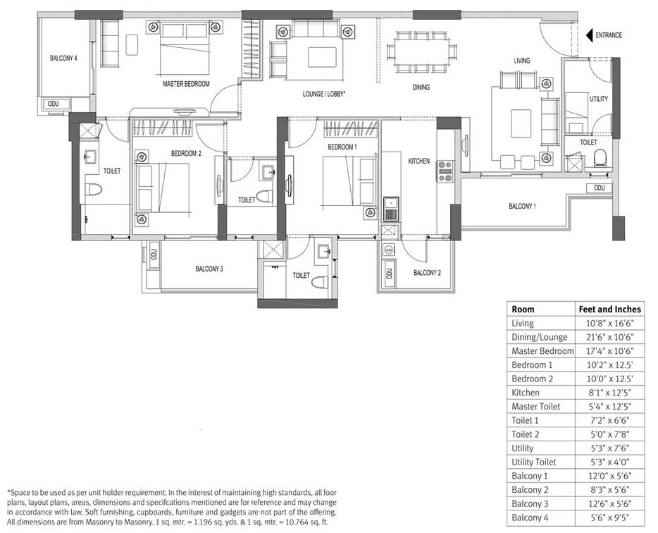
Emaar Palm Heights – Bringing families together with redefined spaces With three modern landmark towers rising above the horizon, Emaar Palm Heights welcomes families who seek the luxury of well-designed spaces to live a well-deserved life. Intelligently designed, spacious 3 b...
Investment Options
| Unit Type | Area (Sq.Ft.) | Price |
|---|---|---|
| 3 BHK + Lounge + Utility | 2025 | Rs. 2.70 Cr* |

